Casa Santa Mónica
photos by Location






photos José Pampín Robles










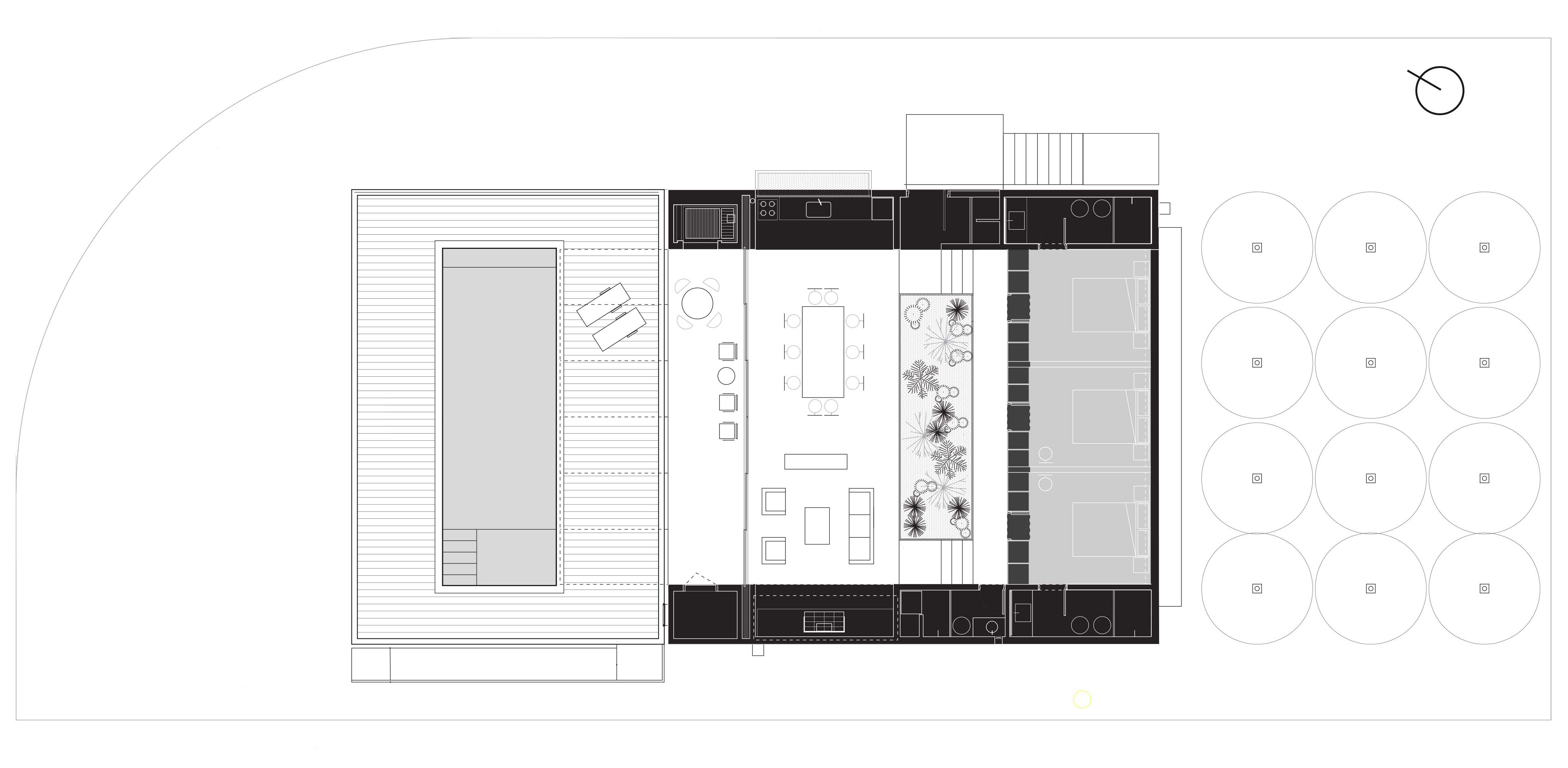
Se trata de una casa de temporada localizada sobre la laguna de José Ignacio en Maldonado, Uruguay. Un macizo volumen y una placa / terraza, ambos en un rustico hormigón visto flotan en el terreno de los márgenes de la laguna. La casa se apoya en un pilar de tierra y uno de agua, el fuego se incorpora en la estufa y el parrillero y el aire se materializa en hueco, jardín que se descubre sorpresivamente desde el interior.
	Programa
Vivienda unifamiliar
Ubicación
Santa Mónica, Maldonado, Uruguay
Directores de proyecto
Arq. Federico Mirabal Pietra
Equipo de proyecto
Arq. Federico Mirabal Pietra, Arq. Marcelo Bednarik Soares, Arq. Ana Maggioli Giosa, Arq. Diego Freiría
Colaboradores
Germán Arismendi, Patricia Miranda, Sabrina Canour
Asesores
Magnone – Pollio ingenieros civiles
Construcción
Alex Hernández
Fotografía
José Pampín Robles / Location
Vivienda unifamiliar
Ubicación
Santa Mónica, Maldonado, Uruguay
Directores de proyecto
Arq. Federico Mirabal Pietra
Equipo de proyecto
Arq. Federico Mirabal Pietra, Arq. Marcelo Bednarik Soares, Arq. Ana Maggioli Giosa, Arq. Diego Freiría
Colaboradores
Germán Arismendi, Patricia Miranda, Sabrina Canour
Asesores
Magnone – Pollio ingenieros civiles
Construcción
Alex Hernández
Fotografía
José Pampín Robles / Location